Xin Phép Xây Dựng Phường An Hội Đông
Thủ Tục Xin Phép Xây Dựng Phường An Hội Đông, Gò Vấp: Trọn Gói & Nhanh Chóng
Nội dung

Bạn đang có kế hoạch khởi công tổ ấm hoặc công trình kinh doanh tại Gò Vấp? Việc nắm rõ quy trình xin phép xây dựng phường An Hội Đông là bước đi đầu tiên và quan trọng nhất để đảm bảo công trình hợp pháp, tránh các rủi ro về đình chỉ thi công hoặc xử phạt hành chính.
Quy định về xin phép xây dựng phường An Hội Đông
Theo quy hoạch đô thị mới nhất của Quận Gò Vấp, phường An Hội Đông có những quy định khắt khe về mật độ xây dựng, chiều cao tầng và khoảng lùi lộ giới. Tùy vào vị trí khu đất (mặt tiền đường hay hẻm nhỏ), các thông số kỹ thuật sẽ có sự khác biệt rõ rệt.
Việc tự mình thực hiện hồ sơ thường khiến gia chủ mất nhiều thời gian do thiếu bản vẽ kỹ thuật chuyên dụng hoặc không nắm vững các nghị định sửa đổi.

Hồ sơ xin phép xây dựng cơ bản gồm những gì?
Để quá trình xin phép xây dựng phường An Hội Đông diễn ra suôn sẻ, bạn cần chuẩn bị:
- Đơn đề nghị cấp giấy phép xây dựng (theo mẫu).
- Bản sao công chứng Giấy chứng nhận quyền sử dụng đất (Sổ hồng).
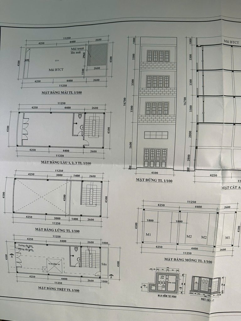
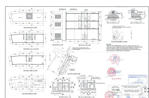
- Hai bộ bản vẽ thiết kế kỹ thuật (bao gồm sơ đồ vị trí, mặt bằng, mặt đứng và mặt cắt).
- Bản cam kết an toàn đối với các công trình liền kề.
Tại sao nên chọn dịch vụ chuyên nghiệp?
Thay vì mệt mỏi với các thủ tục hành chính phức tạp, nhiều khách hàng đã lựa chọn đơn vị hỗ trợ để tối ưu thời gian. Chúng tôi chuyên nhận xin phép tại phường An Hội Đông với đội ngũ kỹ sư và chuyên viên pháp lý am hiểu địa bàn.
Lợi ích khi sử dụng dịch vụ của chúng tôi:
- Tư vấn mật độ: Đảm bảo diện tích xây dựng tối đa nhưng vẫn đúng luật.
- Bản vẽ chuẩn xác: Thiết kế bản vẽ xin phép đúng quy hoạch quận Gò Vấp.
- Tiết kiệm thời gian: Hoàn thiện hồ sơ và nhận kết quả chỉ trong vòng 15 – 21 ngày làm việc.
- Hỗ trợ hồ sơ khó: Xử lý các trường hợp đất dính lộ giới, sai khác hiện trạng.
Cam kết từ đơn vị uy tín
Chúng tôi chuyên nhận xin phép tại phường An Hội Đông với phương châm: Nhanh chóng – Minh bạch – Đúng luật. Chúng tôi sẽ đại diện chủ đầu tư làm việc trực tiếp với cơ quan chức năng, giải trình các vấn đề kỹ thuật và bàn giao giấy phép tận tay khách hàng.
THÔNG TIN LIÊN HỆ:
Công Ty Cổ Phần Đầu Tư Xây Dựng Thương Mại Dịch Vụ Nam Thăng Long
Điện thoại: 0935-975-498.
Zalo: 0935-975-498.
Quý khách vui lòng liên hệ zalo để được tư vấn, báo phí.


